| Estado de Disponibilidad: | |
|---|---|
| Cantidad: | |
BMS
Especificaciónof
Máquina de formación de rollos de viga de carretera W
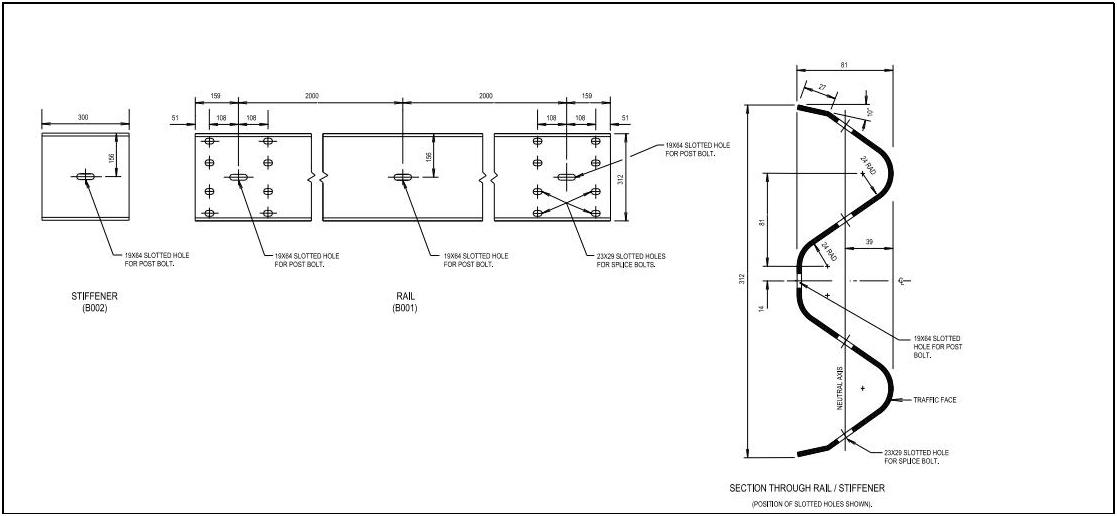
Perfil:
Tipo 1
Tipo 2
Material
Ancho efectivo: 312/502 / 506mm
Grosor del material: 2.5-3.81mm.
Material aplicable: acero galvanizado, bobina de acero laminado en caliente.
Con fuerza de rendimiento 345-550MPA.
Espesor de la inspección: 2.67 / 3.42 / 3.43mm
Seguir el trabajo
Decoiler hidráulico de 6 toneladas → Dispositivo de nivelación → Dispositivo de perforación hidráulica → Dispositivo de alimentación → Máquina principal del sistema → Corte posterior hidráulico → Rack de salida
Agujeros de punzonado: (de la siguiente manera)
Tipo 1:19x64 y 23x29;Escribe2:19x64 y 23x29
Total necesita 2 moldes de perforación.
Componentes de la máquina
1)6 toneladasDeckoiler hidráulico: un conjunto
2)Dispositivo de alimentación y nivelación.
Con guía de material de alimentación y dispositivo de nivelación.
Arriba tres abajo cuatro dispositivos de nivelación totalmente siete ejes
marco de cuerpo hecho deH450 tipo aceroporsoldadura; ladoespesor de pared:Q235 T30mmEjes fabricados desde45 # acero, Diámetro =φ120mm, Tono chapado con cromo duro recubierto, precisión mecanizada
3) orificio de punzonadoDispositivo(Con cuatro moldes de orificios de perforación.)
Motor hidraulico:37kw, Rango de presión hidráulica:0-25MPA (250BAR)
Herramienta de punzonado y corte.material:moldeAcero Cr12MOV (= D2 Steel, con un millón de veces punzonado / vida de corte), Tratamiento térmico a HRC58-62 GRADO
2-cilindrospunzonado de agujerosistema ,totalNecesita cuatro moldes de perforación19x64 y 23x29 y 20x65 y 24x30
4) Máquina principal
Marco de cuerpo hecho deH450 tipo acerosoldadura
Rodillos fabricados desdeCr12Acero, CncTornos, diámetro de los ejes de tratamiento térmico =Ф95, mecanizado de precisión
Accionamiento de la caja de engranajes (rodillos superior e inferior con alimentación)
Estructura de tipo de columnadiseño(Arco conmemorativo de hierro fundido, grosor: 55mm)Caja de engranajes conduciendo, sobreDe 19 pasosformar
Motor principal =45KwFrecuenciaMotor REDCUCTER DE VELOCIDAD DE CONTROL DE VELOCIDAD:Kserie
Bloque deslizante:150 * 150mm
TodosTornillos de tornillo con grado 8.8(Las fábricas baratas usan el bajo grado 4.8)para asegurar arreglar el Estructura de la máquina con fuerza y larga vida durante la máquina en funcionamiento.
Velocidad de formación real12-16m / min
Con agua fríaDispositivo(Para un mejor producto)
19 cajas de engranajes conducen, 38 ejes de transmisión (arribaYPor el eje)
Tipo de columna Struinadiseño(Arco conmemorativo de hierro fundido, grosor: 55mm)
5) Publicar corte hidráulico.Dispositivo(Total necesita dos moldes cortadores.)
Publicar para cortar, detenerse aCorte, tresTipo de piezas de diseño de cuchillas de corte, sin motor hidráulico en blanco:37kW, con dispositivo de punzonado compartir una estación hidráulica
Presión de corte:0-25MPA (250BAR)CorteMaterial de la herramienta:Cr12mov(= SKD11 con al menos Un millón de veces de vida de corte.), Tratamiento térmico a HRC58-62 GRADO
La potencia de corte es proporcionada porLa estación hidráulica independiente.
El sistema hidráulico.Con filtro de aceite para el aceite.filtración, aAsegúrese de que el aceite circulado esté limpio y Alarga la vida del sistema hidráulico.. (Ver la imagen de abajo)
\
6) Sistema de control de PLC
Ingrese la producciónDatos(Lote de producción, PC, longitud, etc.) En la pantalla táctil, puede terminar la producción.Automáticamente.
Combinado con: Inversor, codificador, etc.
Tolerancia de corte a largo≤ ± 1mm
Control del voltaje24v
7) Exit Rack:Sin motor, Unaunidad,conRodillos en él para facilitar el movimiento.
8) producto terminado
Especificaciónof
Máquina de formación de rollos de viga de carretera W
Perfil:
Tipo 1
Tipo 2
Material
Ancho efectivo: 312/502 / 506mm
Grosor del material: 2.5-3.81mm.
Material aplicable: acero galvanizado, bobina de acero laminado en caliente.
Con fuerza de rendimiento 345-550MPA.
Espesor de la inspección: 2.67 / 3.42 / 3.43mm
Seguir el trabajo
Decoiler hidráulico de 6 toneladas → Dispositivo de nivelación → Dispositivo de perforación hidráulica → Dispositivo de alimentación → Máquina principal del sistema → Corte posterior hidráulico → Rack de salida
Agujeros de punzonado: (de la siguiente manera)
Tipo 1:19x64 y 23x29;Escribe2:19x64 y 23x29
Total necesita 2 moldes de perforación.
Componentes de la máquina
1)6 toneladasDeckoiler hidráulico: un conjunto
2)Dispositivo de alimentación y nivelación.
Con guía de material de alimentación y dispositivo de nivelación.
Arriba tres abajo cuatro dispositivos de nivelación totalmente siete ejes
marco de cuerpo hecho deH450 tipo aceroporsoldadura; ladoespesor de pared:Q235 T30mmEjes fabricados desde45 # acero, Diámetro =φ120mm, Tono chapado con cromo duro recubierto, precisión mecanizada
3) orificio de punzonadoDispositivo(Con cuatro moldes de orificios de perforación.)
Motor hidraulico:37kw, Rango de presión hidráulica:0-25MPA (250BAR)
Herramienta de punzonado y corte.material:moldeAcero Cr12MOV (= D2 Steel, con un millón de veces punzonado / vida de corte), Tratamiento térmico a HRC58-62 GRADO
2-cilindrospunzonado de agujerosistema ,totalNecesita cuatro moldes de perforación19x64 y 23x29 y 20x65 y 24x30
4) Máquina principal
Marco de cuerpo hecho deH450 tipo acerosoldadura
Rodillos fabricados desdeCr12Acero, CncTornos, diámetro de los ejes de tratamiento térmico =Ф95, mecanizado de precisión
Accionamiento de la caja de engranajes (rodillos superior e inferior con alimentación)
Estructura de tipo de columnadiseño(Arco conmemorativo de hierro fundido, grosor: 55mm)Caja de engranajes conduciendo, sobreDe 19 pasosformar
Motor principal =45KwFrecuenciaMotor REDCUCTER DE VELOCIDAD DE CONTROL DE VELOCIDAD:Kserie
Bloque deslizante:150 * 150mm
TodosTornillos de tornillo con grado 8.8(Las fábricas baratas usan el bajo grado 4.8)para asegurar arreglar el Estructura de la máquina con fuerza y larga vida durante la máquina en funcionamiento.
Velocidad de formación real12-16m / min
Con agua fríaDispositivo(Para un mejor producto)
19 cajas de engranajes conducen, 38 ejes de transmisión (arribaYPor el eje)
Tipo de columna Struinadiseño(Arco conmemorativo de hierro fundido, grosor: 55mm)
5) Publicar corte hidráulico.Dispositivo(Total necesita dos moldes cortadores.)
Publicar para cortar, detenerse aCorte, tresTipo de piezas de diseño de cuchillas de corte, sin motor hidráulico en blanco:37kW, con dispositivo de punzonado compartir una estación hidráulica
Presión de corte:0-25MPA (250BAR)CorteMaterial de la herramienta:Cr12mov(= SKD11 con al menos Un millón de veces de vida de corte.), Tratamiento térmico a HRC58-62 GRADO
La potencia de corte es proporcionada porLa estación hidráulica independiente.
El sistema hidráulico.Con filtro de aceite para el aceite.filtración, aAsegúrese de que el aceite circulado esté limpio y Alarga la vida del sistema hidráulico.. (Ver la imagen de abajo)
\
6) Sistema de control de PLC
Ingrese la producciónDatos(Lote de producción, PC, longitud, etc.) En la pantalla táctil, puede terminar la producción.Automáticamente.
Combinado con: Inversor, codificador, etc.
Tolerancia de corte a largo≤ ± 1mm
Control del voltaje24v
7) Exit Rack:Sin motor, Unaunidad,conRodillos en él para facilitar el movimiento.
8) producto terminado