| Estado de Disponibilidad: | |
|---|---|
| Cantidad: | |
CU80-300
BMS
| No. | Parámetros principales | Parámetros de molino de formación de rollos | ||
| 1. | DEcoiler | Manual / hidráulico para opciones. | Estaciones formadoras | De 15 pasos |
| 2. | Material cortador | Cr12mov | Base | H450 |
| 3. | Espesor del material | 1.5-3.0mm | Espesor de la pared lateral | Q235 T30mm |
| 4. | Motor hidraulico | 7.5 kW | Ejes | 45 #, φ80mm, φ75 |
| 5. | Material de aplicación | Hoja galvanizada | Motor principal | 22 kW |
| 6. | Fuerza de rendimiento | 345-550MPA | Tornillos | Grado 8.8 |
| 7. | Velocidad de formación | 25m / min (sin punzonado y velocidad de corte) | Tirante | Ф22 galvanizado |
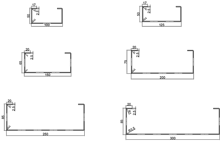
| 8. | Tamaño efectivo | Como diseño del cliente | Rodillo | Gcr15 (= en31 acero), precisión mecanizada, cromo duro recubierto |
| 9. | Sistema de control | Sistema de control de PLC | Modo de procesamiento | Tornos CNC, escuchan tratamiento, cromo duro recubierto, con grosor 0.04mm |
| 10. | Material de prueba | BMS proporcionará el tamaño del material de alimentación para comprar que 2 semanas antes de las pruebas de la máquina | ||
Flujo de trabajo
Decoiler → Dispositivo de guía de alimentación → Dispositivo de perforación → Molino de formación de rollos → Sistema PLC Hidráulico → Dispositivo post-corte hidráulico →
Rack de salida
Pantalla de componentes de la máquina

Decoilero Rodillo formando molino

Dispositivo de guía de alimentación Caso de aplicación del producto
Máquinas producidas productos

| No. | Parámetros principales | Parámetros de molino de formación de rollos | ||
| 1. | DEcoiler | Manual / hidráulico para opciones. | Estaciones formadoras | De 15 pasos |
| 2. | Material cortador | Cr12mov | Base | H450 |
| 3. | Espesor del material | 1.5-3.0mm | Espesor de la pared lateral | Q235 T30mm |
| 4. | Motor hidraulico | 7.5 kW | Ejes | 45 #, φ80mm, φ75 |
| 5. | Material de aplicación | Hoja galvanizada | Motor principal | 22 kW |
| 6. | Fuerza de rendimiento | 345-550MPA | Tornillos | Grado 8.8 |
| 7. | Velocidad de formación | 25m / min (sin punzonado y velocidad de corte) | Tirante | Ф22 galvanizado |
| 8. | Tamaño efectivo | Como diseño del cliente | Rodillo | Gcr15 (= en31 acero), precisión mecanizada, cromo duro recubierto |
| 9. | Sistema de control | Sistema de control de PLC | Modo de procesamiento | Tornos CNC, escuchan tratamiento, cromo duro recubierto, con grosor 0.04mm |
| 10. | Material de prueba | BMS proporcionará el tamaño del material de alimentación para comprar que 2 semanas antes de las pruebas de la máquina | ||
Flujo de trabajo
Decoiler → Dispositivo de guía de alimentación → Dispositivo de perforación → Molino de formación de rollos → Sistema PLC Hidráulico → Dispositivo post-corte hidráulico →
Rack de salida
Pantalla de componentes de la máquina

Decoilero Rodillo formando molino

Dispositivo de guía de alimentación Caso de aplicación del producto
Máquinas producidas productos
